+91 81413 18430
+91 81413 18430
Menu
Enquire Today
Home
About
Company Profile
Business Overview
Corporate Leadership
Products
Product Range
View Product Catalog
Download Product Catalog
Projects
Certificate
Manufacturing Facility
Contact Us
Enquiry Today
KITCHEN & HARDWEAR SECTION
SPECIAL WINDOW SECTION
INDUSTRIAL SECTION
LOUVERS SECTION
SOLAR SECTION
CURTAIN WALL SECTION
LEDDAR SECTION
BOARD SECTION
ARCHITECTURAL SECTION
DOMAL SECTION
Previous
Next
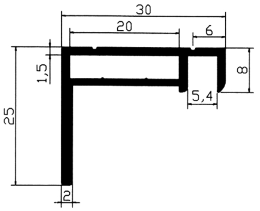
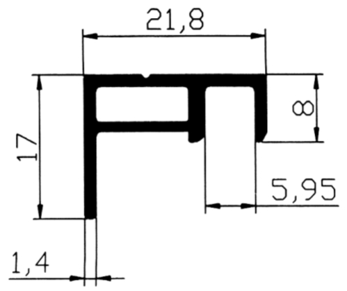
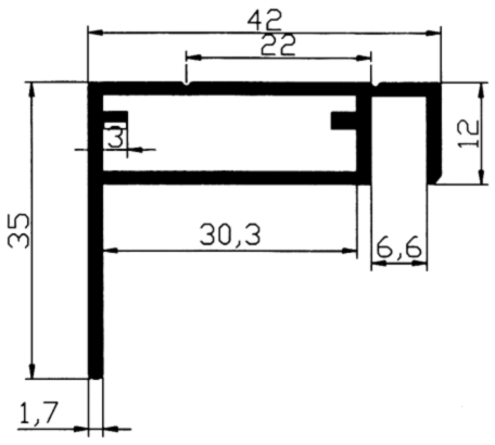
Solar Section
Windalco Aluminium
© Copyright - All Rights Reserved.
Designed & Developed by
ADROIT INTERNATIONAL